Gå videre til innhold
Et utfordrende prosjekt på Mallorca

Blogginnlegg -

Drømmekjøkkenet på Mallorca med Mija Kinning - del 1

LoveLiving prosjekt Antich 36 – et utfordrende og herlig prosjekt i et annet land, av meg - Mija Kinning!

Vi har startet et selskap på Mallorca som heter LoveLiving, og akkurat som navnet tilsier skal prosjektene våre være hjem som man elsker og blir forelsket i. Vi lette lenge etter vårt første prosjekt, før Antich 36 dukket opp. Det var kjærlighet ved første øyekast, en liten perle, som startet jeg med å se på planløsningen og hva som var mulig å gjøre. Vi visste at tre soverom med eget bad er noe de fleste kunder ønsker seg, og selvsagt et pent åpent kjøkken, så det var det jeg jobbet ut i fra, og i tilleg få til vakre miljø i varme, behagelige farger og materialer.

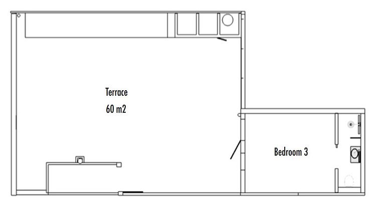
Plantegning før

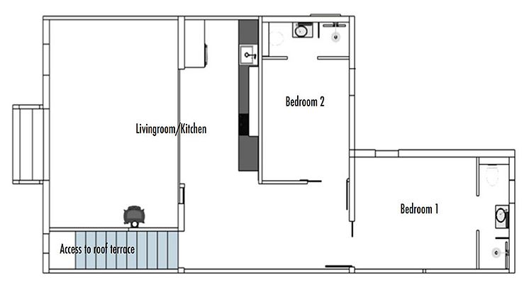
Plantegning etter

Fra starten av var det to soverom, et kjøkken, et baderom og en stue i første etasje. I dag er det to soverom med egne baderom og en stor stue med åpen kjøkkenløsning, siden vi har revet en vegg for å integrerte kjøkkenet med resten av rommet.

Leiligheten hadde vinduskarmer i tre med fine detaljer og tredører som var veldig vakre, men i dårlig stand. Det enkleste ville være å bytte til nye i et mindre sjarmerande materiale, men mer praktisk. Men dessverre ville karakteren og stemningen forsvinner hvis vi gjorde det, så vi fikk laget nye i tre med de samme fine detaljene. Veldig fornøyd med den beslutningen! Den lokale snekkeren har gjort en fantastisk jobb.

Man kan jo lure på hvorfor man tar med seg kjøkkenet til Mallorca?! For meg var avgjørelsen åpenbar. Jeg ville vite hva jeg fikk, både i forhold til kvalitet og utseende. Selvfølgelig har de fine kjøkken her på øya også, men jeg har sondert terrenget og ikke funnet det jeg ønsket. Dessuten bestemte vi oss fra starten av at vi ville transportere alt ned - også kjøkkenet. Med det ferdige resultatet vi har nå, er jeg glad for att vi gjorde det på den måten. Leiligheten har et kjøkken som inneholder alt du kan ønske deg: stort kjøleskap, fryser, oppvaskmaskin og vaskemaskin. Alt integrert for et godt resultat! Selvfølgelig har vi også en smart stekeovn og platetopp.

Kjøkkenskapene er i Bistro varmgrå kombinert med system 10. Dette gir et vakkert og sobert uttrykk. Benkeplaten fungerer også som beskytteelse mot matsprut, ved å plassere en stor plate mot veggen og så hele kjøkkenet mot den igjen. De øvre skapene med "Mija Kinning" - hyller gir en interessasnt og skulpturell følelse. Jeg er så fornøyd med dette lille, stilige og praktiske kjøkkenet. Jeg har satt inn et antikt bord som kan fungere som kjøkkenøy, hvor du kan både sitte og spise "henge" mens du venter på maten eller hakke grønnsaker. Det er fins å blande inn andre møbler på kjøkkenet, for å skape behagelige kontraster.



Takterassen

Takterrassens utforming etter



Stor takterrasse med et lite "topphus" som tidligere ble brukt til oppbevaring og vaskerom. I dag er det et soverom med bad. På terrassen kan du ligge og slappe av på sofaen, sole deg eller hvorfor ikke ta en dusj før du griller og nyter den gode maten under pergolaen.

Visjonen og håpet vårt har vært at når du ser bildene, skal fu føle et sug i magen og kjenne at her vil du bo og leve. Jeg lovet med selv at det skulle være vanskelig å selge det. Og for å være helt ærlig, - da jeg lukket døren når vi var ferdige, ønsket jeg at vi kunne beholde det. Man ville bare flytte inn med en gang, henge opp tingene sine på knaggene i soverommet, legge inn klærne i det vakre treskapet og pakke ut toalettsakene idet fine badet. Jeg vill lage deilig mat i det fine åpne kjøkkenet, henge litt i sofaen eller gå opp på terrassen for å slappe av på sofaen der oppe. Kanskje sole seg litt eller ta en dusj under åpen himmel. Topphuset er en drøm, så hyggelig at jeg vil sove der med åpen dør og ikke stå opp før noen serverte meg frokost i skyggen av pergolaen.

Hva jeg tenkte om hele prosjektet før vi startet, kan du lese om senere og hvordan det kan gå når du skal løfte en 4 meter lang benkeplate via en takterrasse!

/ Mija

Related links

Emner

Kategorier

Kontakter