Gå direkt till innehåll

Pressmeddelande -

Så kan entreprenörsboenden bli attraktiva bostäder - lönsamt

Kan man lösa entreprenörsboende och permanenta bostäder på en och samma gång? Absolut, säger Lindbäcks som tagit fram det nytänkande konceptet Växla.

  • Vår flexibla lösning erbjuder attraktiva boenden för entreprenörer och en lönsam och långsiktigt hållbar affär när fastigheten växlas till permanenta bostäder, förklarar Fredrik Hemborg, vd, Lindbäcks Projektutveckling.
  • Växla är en nytänkande lösning på bostadsutmaningen som i ett och samma projekt möjliggör attraktiva entreprenörsboenden som på ett hållbart sätt blir en del av samhällsutvecklingen. Växla har flexibiliteten att helt eller delvis växla över till permanenta bostäder på bara några månader.

I norra Sverige investeras nu över 1400 miljarder i nya gröna industrier. Som en konsekvens är behovet stort på både entreprenörsboenden och permanenta bostäder när flera kommuner förväntas få en kraftfull tillväxttakt när industrierna ska anställa tusentals nya medarbetare.

Inte sällan leder behovet av entreprenörsbostäder till etableringar av barackläger utanför samhällena, ofta med mindre bra boendemiljö som för med sig social oro och andra problem. Dessutom finns ett grundläggande behov av att bygga nya bostäder på flera tillväxtorter i nästa steg. Just nu är nyproduktionen av boenden på låga nivåer generellt i Sverige, så där kan Växla vara en ny attraktiv lösning.

Lindbäcks som har sin hemvist i norr har som traditionen bjuder identifierat problemet och kommit fram med en lösning. Ett nytt koncept.

Fredrik Hemborg, vd, Lindbäcks Projektutveckling:

Investeringen är dessutom klimatsmart, Lindbäcks hus byggs med trästomme som mer än halverar koldioxidutsläppen jämfört med traditionellt byggande.

  • Vill du prioritera hållbarhet så är Växla inte enbart ekologiskt hållbart, etableringen och investeringen är långsiktig, vi nyttjar behovet av entreprenörsboenden för att i nästa steg redan ha etablerat bostäder. På så vis bidrar vi till samhällsutvecklingen och att bygga riktig stad, säger Hemborg och konstaterar:
  • En av de stora utmaningarna idag är att kalkylen för nyproduktion av bostäder inte går ihop. Genom att kombinera det kortsiktiga och långsiktiga behovet av bostäder skapar vi en lönsam affär med bra avkastning och därmed en investeringsbar produkt. Konceptet erbjuder alltså en lönsam lösning på båda behoven och är därmed ekonomiskt hållbar. Dessutom resulterar en kortare byggtid i minskade finansieringskostnader. Att fastigheten erbjuder en attraktiv boendemiljö redan som entreprenörsboende gör lösningen alltså även socialt hållbar.
  • Ja, vi har flera dialoger igång redan och det finns absolut en stor nyfikenhet på konceptet. Vi hoppas kunna starta några Växla-projekt nu under året.

Hemborg har i närtid inlett dialoger med några externa parter och kan bekräfta ett stort intresse.

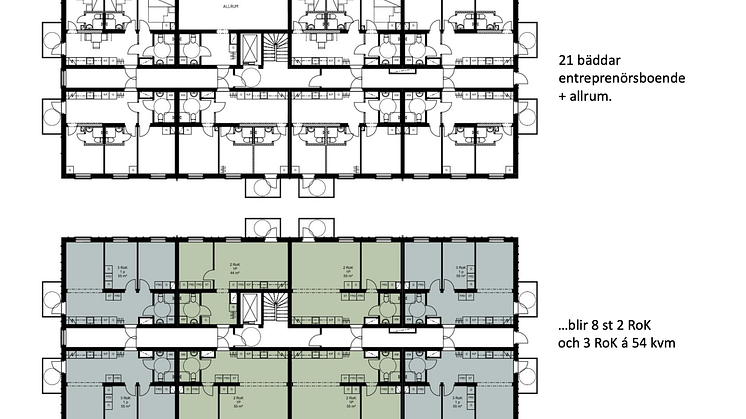
Växla i korthet – så funkar det!

• Attraktiva hus och boendemiljöer
• 6 månader att uppföra som entreprenörsboende
• 144 entreprenörsbostäder blir 55 lägenheter
• 16 kvm entreprenörsboende blir 35-65kvm ettor, tvåor och treor
• 3 månader att växla till permanenta lägenheter
• Bostadsrätter, hyresrätter eller studentboendehotell
• Stegvis omställning och instegsboende

Ämnen

Kategorier


Vi bygger industriellt för att vi tror på hållbart boende för fler. I nära samarbete med våra kunder och med en stark drivkraft för innovation utvecklar och bygger vi industriellt producerade flerbostadshus i trä – allt för att skapa slagkraftiga och hållbara boenden som motsvarar morgondagens behov. .Vi lägger stort fokus på boendekvalitet och genom att alltid samarbeta med några av landets främsta arkitektkontor skapar vi attraktiva, sunda och funktionella hem.

Familjeföretaget startade 1924 i Piteå, där huvudkontor och våra två produktionsanläggningar finns. Vi har även kontor i Stockholm och totalt är vi ca 320 medarbetare som arbetar efter våra kärnvärden; kunskap, engagemang och drivkraft.

Med målet att bli Europas modernaste producent av flerbostadshus har vi idag en helt ny produktionsanläggning. Den invigdes i slutet av 2017 och är helt försörjd av solenergi och fjärrvärme, Sveriges mest hållbara byggplats! På Lindbäcks är vi kända för att vara innovativa, och det stämmer – vi siktar aldrig annat än framåt.

Välkommen att läsa mer på www.lindbacks.se

Kontakter