Gå direkt till innehåll
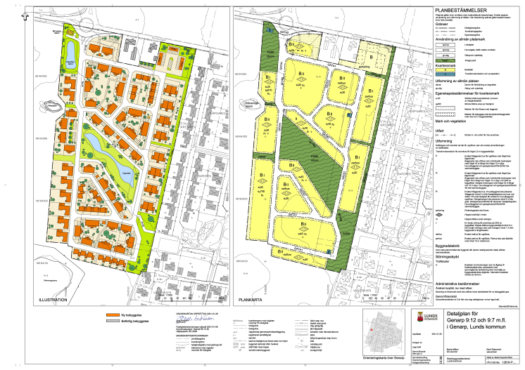
En liten del av planillustrationen som visar nya bostäder och ny park i Genarp

Pressmeddelande -

175 nya bostäder i Genarp

Genarp kan få 175 nya bostäder och en ny park. Under våren kan Genarpsborna tycka till om detaljplanen som visar hur Genarp kan växa i nordväst.

Efterfrågan på friliggande hus i Genarp är stor och det förslag till detaljplan som nu är redo för samråd erbjuder ett flertal villor. De nya bostadskvarteren kommer också ha radhus, parhus och mindre flerbostadshus i som högst tre våningar. Planområdet ligger i den nordvästra delen av Genarp och gränsar mot Kyrkovägen i norr och villor i öster. Området är drygt 63 000 kvadratmeter stort och är idag åkermark och ängsmark.

– Många som vill bo i Genarp efterfrågar villor och radhus och det är en plats där vi tycker att det passar bra att göra plats för fler sådana bostäder, säger Klas Svanberg (M), byggnadsnämndens ordförande.

Området kommer att formas med hänsyn till de som redan bor i närheten. Husen närmast de befintliga villorna kommer bara ha en våning och en liten grönyta planeras mellan nytt och befintligt område. De högre flerbostadshusen, mest tvåvånings- men även en del trevåningshus, planeras istället i den västra och norra delen. Dessa kommer som mest bestå av fyra lägenheter, och när de har tre våningar är den tredje indragen för att husen inte upplevas som så höga.

– Vi planerar för ett bostadsområde med mestadels låga hus, mycket grönska och trevliga smågator, säger planarkitekt Kent Ratcovich.

Inom planområdet finns det flera platser för lek och avkoppling där träd och grönska prioriteras. I mitten av området planeras en park på över 4000 kvadratmeter, ungefär lika stor som den park som finns mellan de bostadskvarteren öster om det nya bostadsområdet.

– Exakt hur den nya parken ska se ut är inte bestämt men det kommer att finnas en damm som både kan bidra till trivsel, fördröja dagvatten och motverka eventuella översvämningar vid mycket regn, berättar Kent.

Mellan den nya och befintliga parken blir det en gång- och cykelväg som sedan leder vidare mot Genarps centrum. Inom planområdet kommer alla gång och cykelvägar byggas enligt kommunens cykelpolicy. Det innebär att säkerheten för gång- och cykeltrafikanter prioriteras och att lokalgatorna höjs upp där gång‐ och cykelbana korsas, för att dämpa bilarnas hastighet.

Samrådstiden börjar 1 mars och då har Genarpsbor och andra intresserade möjlighet att lämna synpunkter på förslaget.

För mer information kontakta gärna:

Klas Svanberg (M), byggnadsnämndens ordförande, 0708-56 50 31, klas.svanberg@lund.se

Kent Ratcovich, planarkitekt, stadsbyggnadskontoret, 0729-81 62 45, kent.ratcovich@lund.se

Ole Kasimir, planchef, stadsbyggnadskontoret, 0734-48 53 60, ole.kasimir@lund.se

Hans Juhlin, stadsbyggnadsdirektör, stadsbyggnadskontoret, 0724-68 28 18, hans.juhlin@lund.se

Ämnen

Regioner

Kontakter